
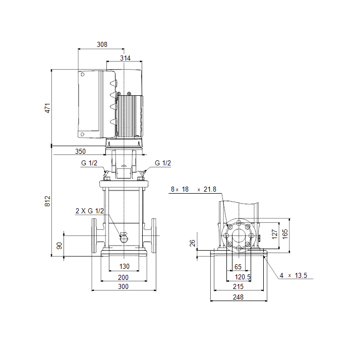
Grundfos CRIE 20-8 N FGJ A E HQQE 15.0kW Vertical Multi-Stage Pump (with Sensor) 415V
BEST ONLINE PRICES
FREEPHONE 0800 112 3134 if you've seen it cheaper.
* Available where Guaranteed Stock Icon Appears Below
The CRIE with sensor models have been designed for closed feedback loop variable speed control and are supplied with constant pressure transducers already fitted. The default control mode is ''constant pressure''.
The single point pressure transducer is fitted into the accessory port in the pump head.
The Grundfos CRE, CRIE and CRNE pumps are based on the CR, CRI and CRN pumps and are referred to as E-pumps. The difference between the CR and CRE pump ranges is the motor. CRE, CRIE and CRNE pumps are fitted with a motor with built-in frequency converter.
The E-pump MGE motor is designed to EN standards. The built-in frequency converter enables continuously variable control of the motor speed. This means that the pump can be set to operation at any duty point. The purpose of continuously variable speed control of the motor speed is to adjust the performance to a given requirement. These pumps are available with an integrated pressure sensor connected to the frequency converter. The pump materials are identical to those of the CRI and CRN pump ranges.
Select an E-pump if the following is required:
- controlled operation, i.e. the consumption fluctuates
- constant pressure
- communication with the pump
Adaptation of performance through frequency controlled speed control offers obvious benefits, such as:
- energy savings
- increased comfort
- control and monitoring of the pump performance
CRIE pumps fitted with A CA I E HQQE seal codes are supplied with no pipe connection and require a set of 2 x 2 bolt oval flanges. Pumps fitted with FGJ and F flanges require counter flanges.
The "E" pump range requires a Grundfos "GO" communication device in order to commission the pump. This device can be used to commission and monitor multiple pumps on multiple sites.
| SKU | 96514717 |
|---|---|
| Manufacturer | Grundfos |
| Manufacturers Warranty | 2 Years |
| GTIN | 5700396711768 |
| Weight | 255.0 Kg |
| Dimensions | 1283mm (h) x 300mm (w) x 248mm (d) |
| Motor Size (kW/W) | 11.0 kW |
| Full Load Current (FLC) | 30.0-26.0 A |
| Voltage | 415V 3Ph 50Hz |
| RPM | 3528rpm |
| Max Flow | 35.3m3/hr |
| Max Head | 172m |
| Max Temperature | 120 °C |
| Material | Stainless Steel |
| Impeller Material | Stainless Steel |
Delivery
We offer free standard delivery to any UK address on a 3-5 working day delivery time on all orders over the value of £45 + vat. This is not weight restricted
Next day delivery is charged at £12.50 + vat for items under 35kgs. Orders need to be placed before 5pm Mon-Thurs or 4:30 on Friday for guaranteed Next Day Delivery.
Next day delivery is not available for UK Highlands and Islands. Please click the following link to view postcodes/areas that don't qualify for next day delivery.
Due to some product specifications, there may be a lead time of up to 4 weeks. This is only on a small number of products and you will be contacted upon purchase and entitled to a full refund if required.
For Items over 35kgs, please review our delivery charges here
For full delivery terms please click here
International Delivery
If you want your order delivered to a remote area please contact our one of our Sales Representatives on 0800 112 3134 before placing your order and we will assist you further.
Returns
Please note specific items may incur a restocking charge as they are made to order, the cost of which, it determined by the manufacturer not ourselves. Items that are made to order or cut to specific length e.g. Hose cut to specific length may not be entitled to a refund.
Please contact customer services for clarification.
Unused, unaltered items may be returned at the buyers expense for credit upon Anchor Pumps prior written consent and upon the terms specified by Anchor Pumps. The buyer assumes all risk of loss of such returned goods until actual receipt and acceptance by Anchor Pumps. Please click here to view Returns information.























